- Личный кабинет
- Online бронирование
- Новый год
- Экскурсии по Петербургу и пригородам
- Экскурсии для школьников
- Туры для школьных групп
- Культурно-гастрономические выходные
- Экологические экскурсии
- Корпоративный отдых
- Туры по России
- Туры в Санкт-Петербург
- Гастрономические туры
- Активный отдых
- Речные круизы по России
- Железнодорожные туры
- Изучение языков
Коттедж № 4457
География:
Стоимость:
неделя от 600 €
Характеристики
Количество мест:
6
Количество спален:
3
От границы:
290 км
Площадь:
107 кв. м.
Год постройки:
2003 г.
Расстояние от берега:
100 м
Расстояние от склона:
3500 м
Услуги
Рыбалка
С собакой
Горнолыжный курорт
Камин
Сауна в коттедже
Посудомоечная машина
Стиральная машина
Сушильный шкаф
Телевизор
Лодка
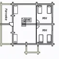
Площадь: 107м2
Год постройки: 2003
На первом этаже:
- Кухня-гостиная
- 1 спальня (2 раздельные кровати)
- Дровяная сауна, душ, раздевалка, туалет
- Терраса
На втором этаже:
- 2 спальни (2 раздельные кровати в каждой)
- гостиная
Оборудование: камин, электричество, эл. отопление, эл. плита, духовка, холодильник, микроволновка, посудомоечная машин, стиральная машина, ТВ, CD, DVD, сушильный шкаф, барбекю.






























